Neues Vereinsheim
Der Ortskundige hat schon viel in der Kreuzstraße 1 in Waldbreitbach kommen und gehen gesehen. Da war u.a. eine Kfz-Werkstatt, ein Gasthaus eine Tankstelle, Postagentur u. Kiosk, ein Kebab-Haus eine Shisha-Bar eine Physio-Therapie und jetzt?
Seit Monaten sind immer wieder fleißige Hände und Handwerker am Werke und das Aussehen des doch nach mehr als dreißig Jahren verschiedenster Nutzung arg herabgewirtschafteten Anwesens am Ortseingang von Waldbreitbach verändert sich. Was ist geschehen und was soll hier entstehen?
Fragt sich so mancher, der das emsige Treiben und die Veränderungen am Objekt beobachtet.
Nun dem geneigten Betrachter sei verkündet, dass dieses Anwesen künftig den ehrenamtlichen Helferinnen u. Helfern des DRK-Ortsvereines Waldbreitbach e.V. als Vereinsheim dienen soll.
Bislang mussten die Helferinnen u. Helfer, die ihre Freizeit - genau wie ihre Kameradinnen u. Kameraden der freiwilligen Feuerwehren - in den Dienst am Nächsten stellen, in sehr beengten Verhältnissen im Feuerwehrgerätehaus in Waldbreitbach ihr Dasein fristen.
Aber der stetige Zuwachs an Aufgaben und in Abhängigkeit hiervon auch an Material u. Fahrzeugen, verlangte schon seit Jahrzehnten nach einer Veränderung.
Eine geeignete Immobilie zu finden gestaltete sich recht schwierig und so suchte der Verein schon seit nahezu 25 Jahren. Glücklicherweise konnte der DRK-Ortsverein Ende 2012 die Immobilie Kreuzstr. 1 in Waldbreitbach erwerben – von der Lage und Ausgestaltung sicherlich ein einmaliger Glücksgriff zumal zentral u. verkehrsgünstig im Zuständigkeitsbereich des DRK-Ortsvereines, der Verbandsgemeinde Waldbreitbach, gelegen.
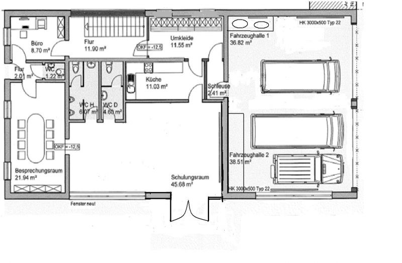
Nun geht es darum, die Immobilie an die Erfordernisse der neuen Aufgabenstellung baulich anzupassen. So wird sich das Anwesen künftig zur Kreuzstr. 1 hin als Fahrzeughalle

und im rückwärtigen Teil (dem alten Gast- u. Schankraum) als Lehrsaal, Aufenthalts-, Toiletten-, Umkleideraum u. Büro bzw. Küche präsentieren.

Dies ist nicht nur im Hinblick auf die zu erledigenden Arbeiten, sondern vor allem auch die notwendigen finanziellen Aufwendungen ein Mammut-Projekt für den kleinen Verein (rund 20 aktive Helferinnen u. Helfer) der sich ausschließlich aus Mitgliedsbeiträgen u. Spenden, sowie Aufwandsentschädigungen für geleistete Sanitätsdienste finanzieren muss.
Auch kamen – wie so oft - neben den kalkulierten u. eingeplanten Kosten noch etliche, nicht vorhersehbare Ausgaben hinzu. So stellte sich heraus, dass die Heizungsanlage in weit schlechterem Zustand war als zunächst angenommen – auch das Dach musste erneuert werden, da ansonsten alle Renovierungsarbeiten nur kurzeitigen Erfolg gehabt hätten.
Das Dach alleine schlug hier mit rund 30.000,00 € zu Buche u. jeder der einmal selbst ein Haus gebaut oder eine gebrauchte Immobilie übernommen hat, kann nachvollziehen, welche Anstrengungen ein so kleiner Verein unternimmt u. unternehmen muss, wenn das Vorhaben zum Erfolg führen soll.
Nicht zuletzt ist uns, den Helferinnen u. Helfern daran gelegen der Bevölkerung in gewohnt fachkundiger u. gut nachbarschaftlicher Weise auch künftig stets zur Seite zu stehen, wenn unsere Hilfe erforderlich u. gewünscht ist. Dazu dient natürlich auch die Ausstattung mit dem Erforderlichen Material u. Hilfsmitteln, sowie eine für die Aufgabenstellung adäquate Unterbringung.
Auch das Ortsbild der Gemeinde Waldbreitbach wird sicherlich künftig nachhaltig u. positiv beeinflusst, da der DRK-Ortsverein Waldbreitbach sein Anwesen am Ortseingang künftig in gepflegten u. repräsentativen Zustand halten wird sicherlich eine merkliche Verbesserung gegenüber dem Wildwuchs der vergangenen Jahre!
Wir würden uns freuen, wenn wir für unser Projekt auch Ihre Unterstützung/Spende erhalten.
Spendenkonto:
DRK-Ortsverein Waldbreitbach e.V.
Sparkasse Neuwied
Konto: 2010940
BLZ: 574 501 20
Verwendungszweck: Vereinsheim